POS Stanovi Varaždin
Višestambeno POS naselje Varaždin
- Stambene zgrade
Godina
2024.
Lokacija
Varaždin
Površina parcele
3.274,00 m2
Površina građevine
3.000,00 m2











Detalji projekta
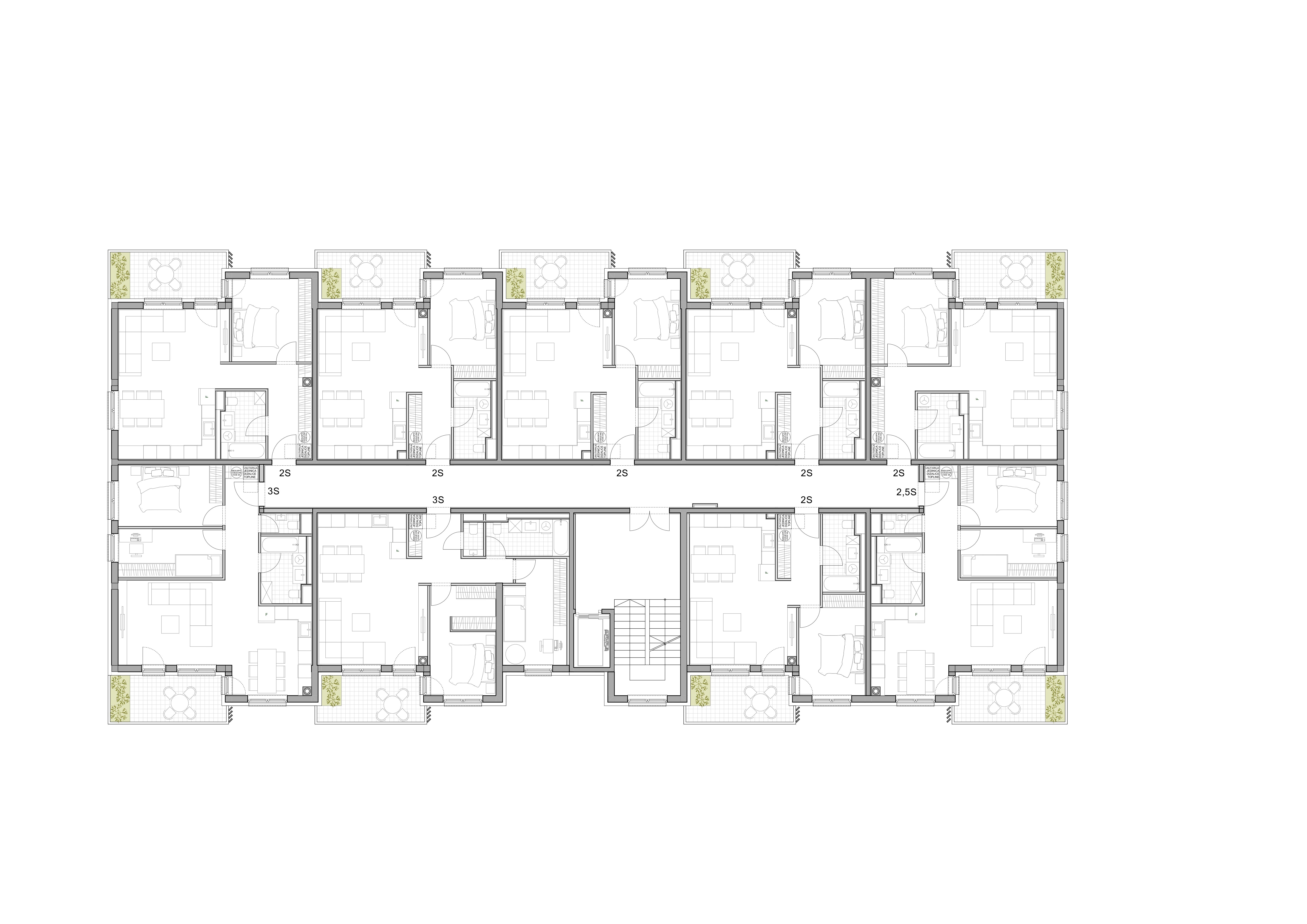
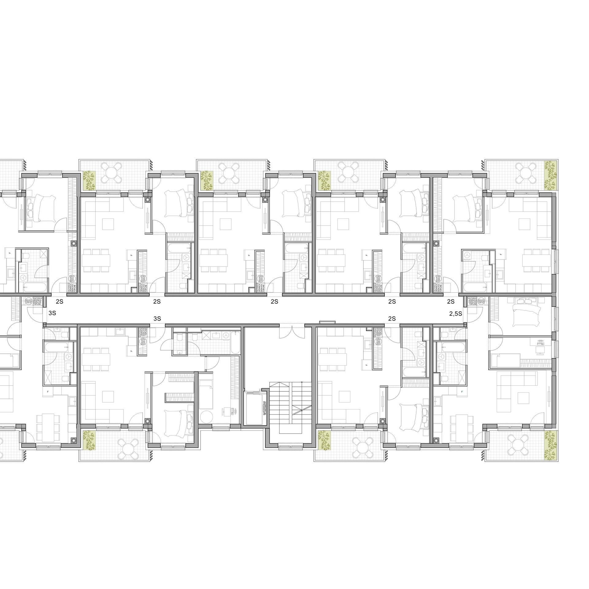
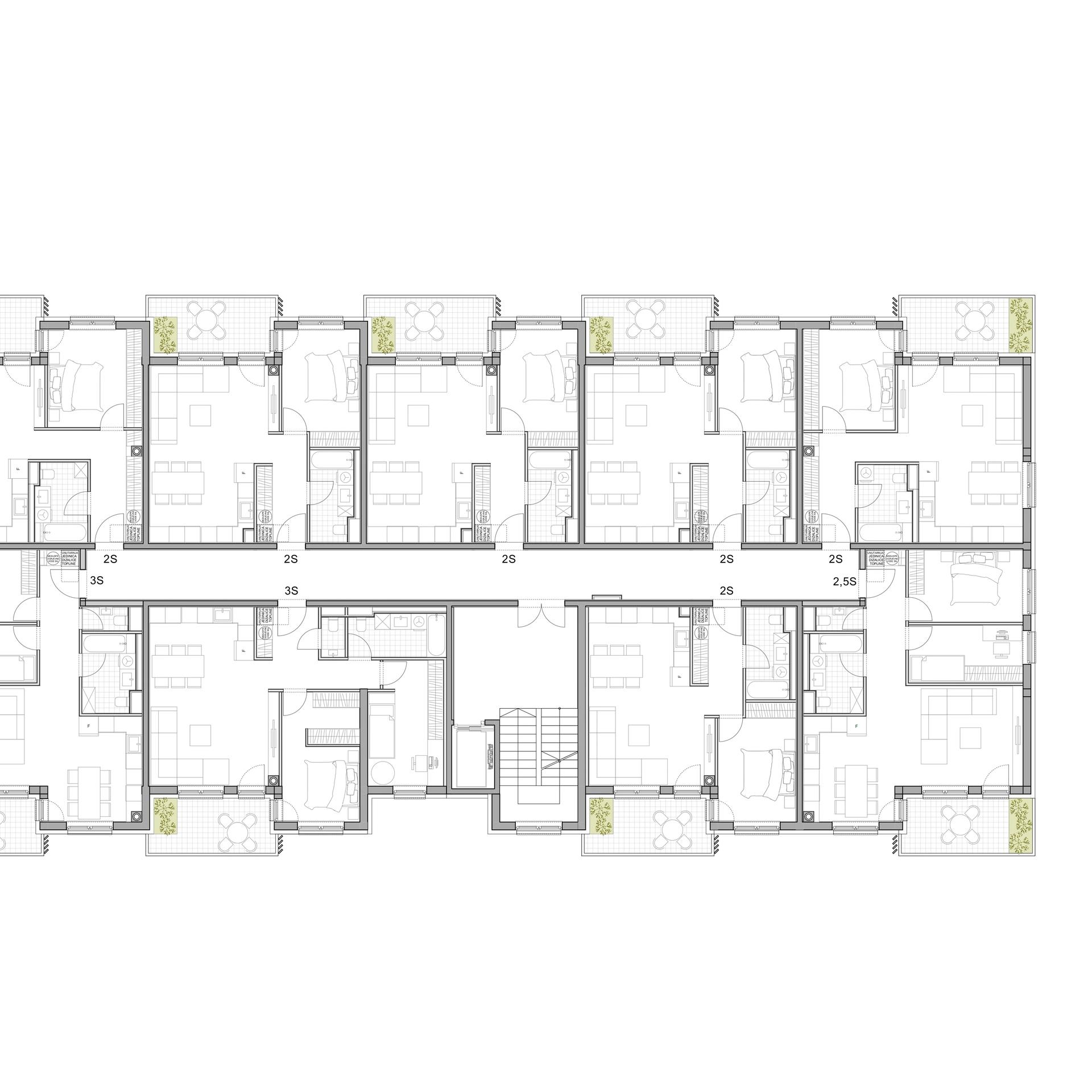
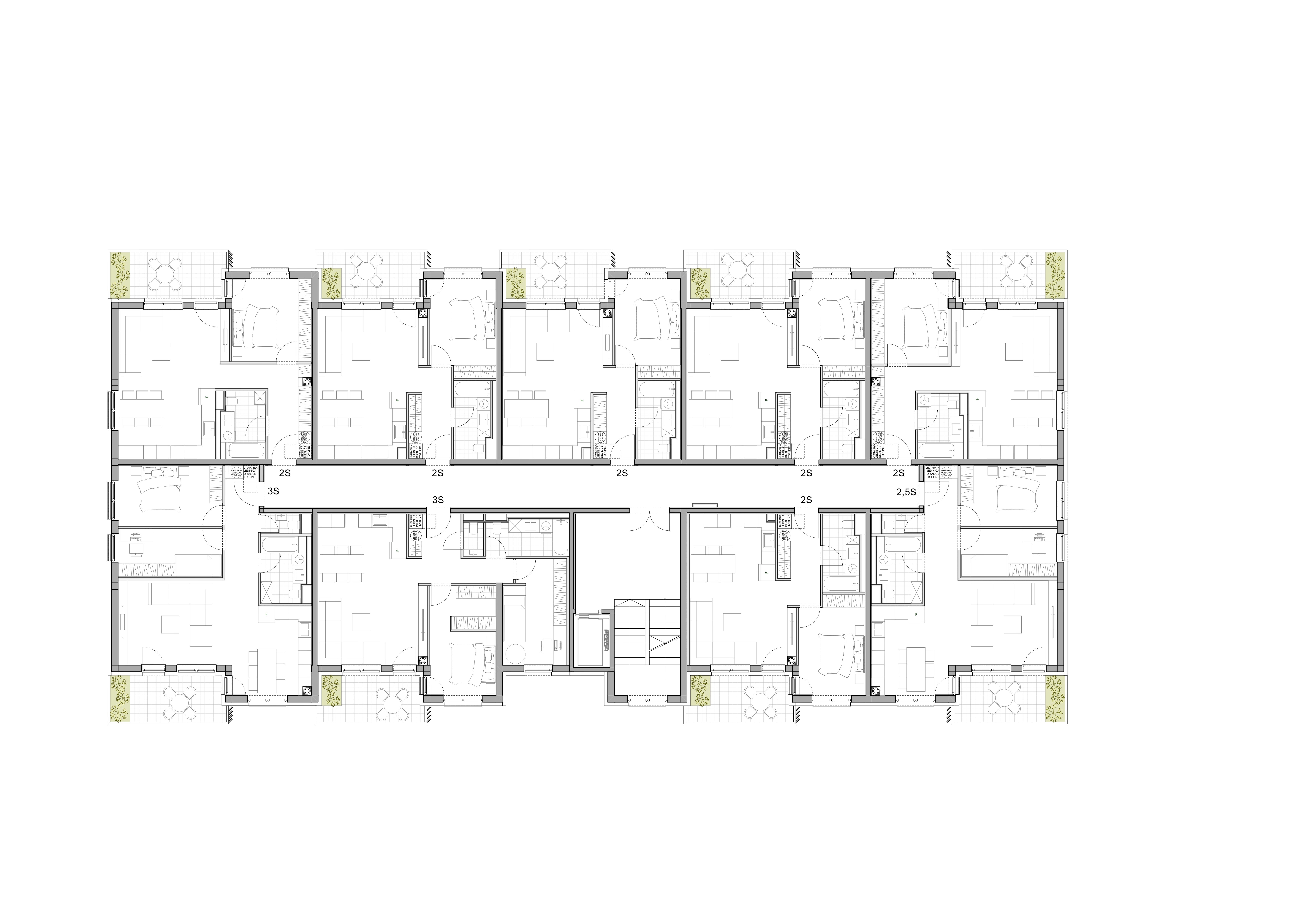
Višestambena zgrada sastoji se od podruma, prizemlja, dva kata i uvučenog kata. U podrumu se nalazi podzemna garaža s 27 parkirnih mjesta. Prizemlje obuhvaća 7 stambenih jedinica, prostor za bicikle, spremišta stanara te popratne komunikacije poput hodnika, stubišta i dizala. Na prvom i drugom katu smješteno je po 9 stambenih jedinica, dok se na uvučenom katu nalazi 5 stanova. Stambene jedinice su projektirane prema Pravilniku minimalnih tehničkih uvjeta za program POS i obuhvaćaju različite tipove: 2-sobni, 2,5-sobni, 3-sobni, 3,5-sobni i 5-sobni stanovi. Na taj način će se izgraditi još 5 takvih zgrada.
Iz medija
Prva zgrada novog POS-a u Varaždinu ide kraju, gradit će se cesta prema Hallerovoj aleji
Gradonačelnik Varaždina Neven Bosilj i ravnatelj Javne ustanove Gradski stanovi Roman Veršić obišli su danas sa suradnicima u Varaždinu gradilište u Ulici Ivana Nepomuka Petrovića gdje su pri kraju radovi na prvoj POS zgradi.


Iz medija
Uručeni ključevi stanova u POS zgradi u Ulici Ivana Nepomuka Petrovića
Prvi stanari u novoj POS zgradi danas su dobili svoje ključeve. Gradnja druge zgrade već je počela, a slijedi i građevinska dozvola za treću.
